Предназначены для заполнения оконных проемов в возводимых промышленных зданиях с неагрессивной или слабоагрессивной средой и гражданских зданиях.
Окна и рамы изготавливаются из металлического облегченного гнутозамкнутого оконного профиля по размерам заказчика. Остекление переплетов производится стеклом или стеклопакетом Возможно изготовление окон с тройным остеклением.
ОГД - окно глухое с одинарным переплетом; ОТД - окно открывающееся с одинарным переплетом и механизмом открывания фрамуги; ОГР – окно глухое с раздельными переплетами; ОТР - окно открывающееся с раздельными переплетами и механизмом открывания фрамуг; ОТЖ – окно с жалюзийной решеткой в одинарном переплете.
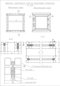
Окна комплектуются резиновым уплотнительным профилем для крепления стекол и уплотнения притворов фрамуг (для серии 1.436.2-17.кроме того, алюминиевым штапиком). Изготовление предусматривает два типа крепления стекла (стеклопакета).
Варианты исполнения окон серий 1.436.3-21 и 1.436.2-17.
|
|
| Серия 1.436.3-21 | Серия 1.436.2-17 |

